您好,欢迎访问贵州亿鑫控股集团有限公司
4009935319

联系我们

邮箱:
电话:4009935319
地址:贵州省贵安新区甘泉街云谷综合体A7-3 在线咨询

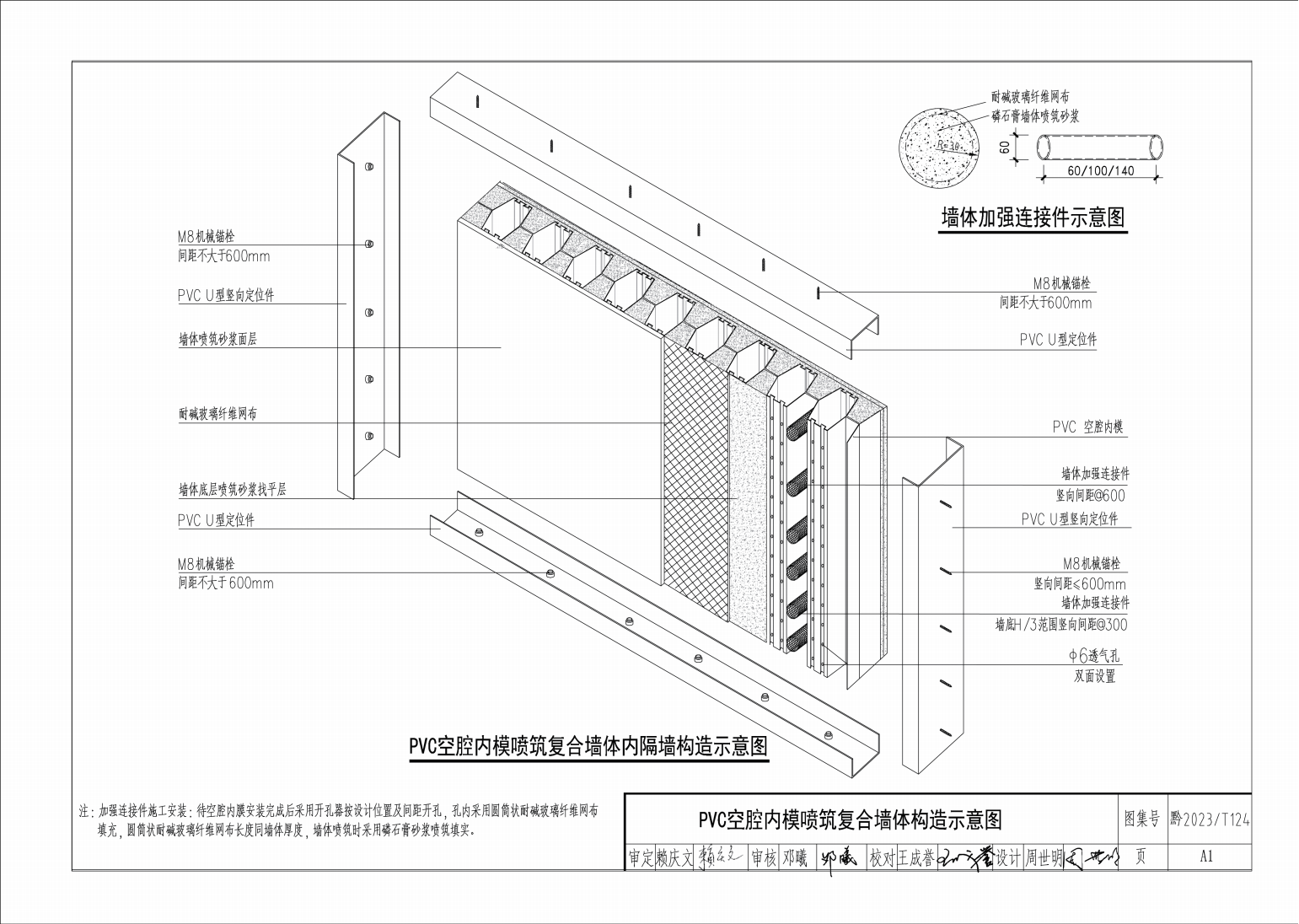
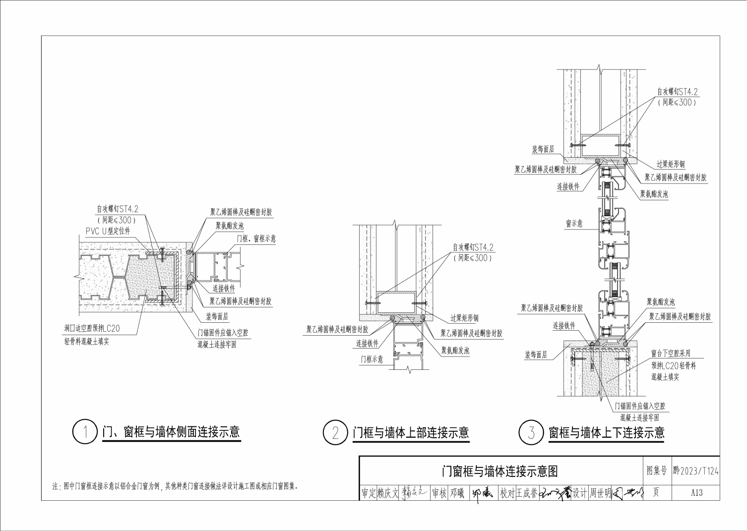
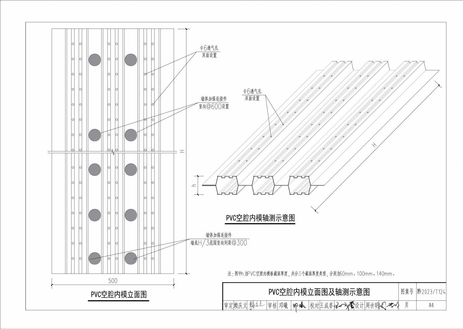
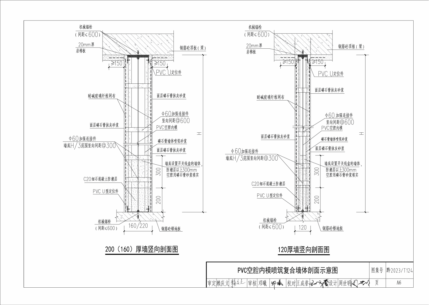
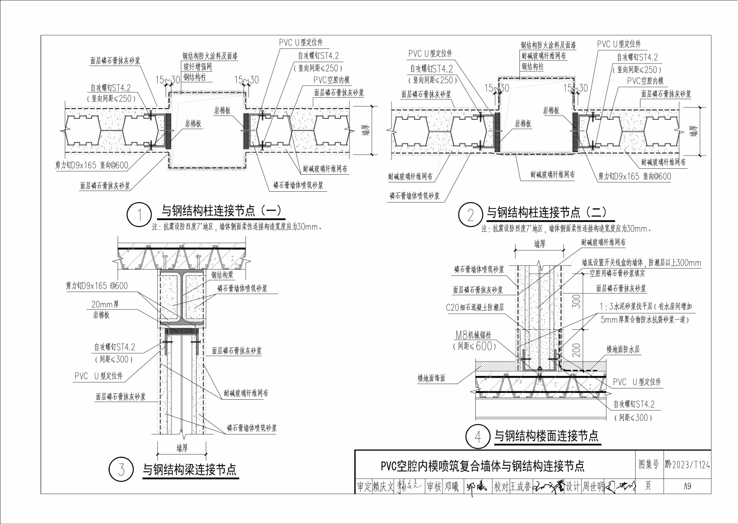
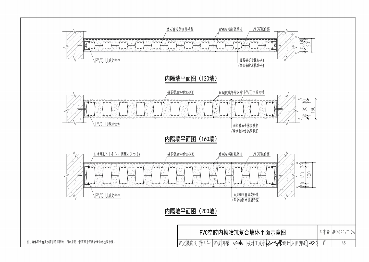
贵州省住房和城乡建设厅关于发布《磷石膏砂浆 喷筑复合墙标准图集 第二部分:PVC 空腔内模 ——磷石膏砂浆喷筑复合墙体》的通知

贵州省住房和城乡建设厅关于发布《磷石膏砂浆 喷筑复合墙标准图集 第二部分:PVC 空腔内模 ——磷石膏砂浆喷筑复合墙体》的通知

发布日期:2023-02-28 浏览次数:1460

贵州省住房和城乡建设厅关于发布《磷石膏砂浆 喷筑复合墙标准图集 第二部分:PVC 空腔内模 ——磷石膏砂浆喷筑复合墙体》的通知



4009935319
  • 微信号:微信二维码